• Toulouse - 2006
    Concours

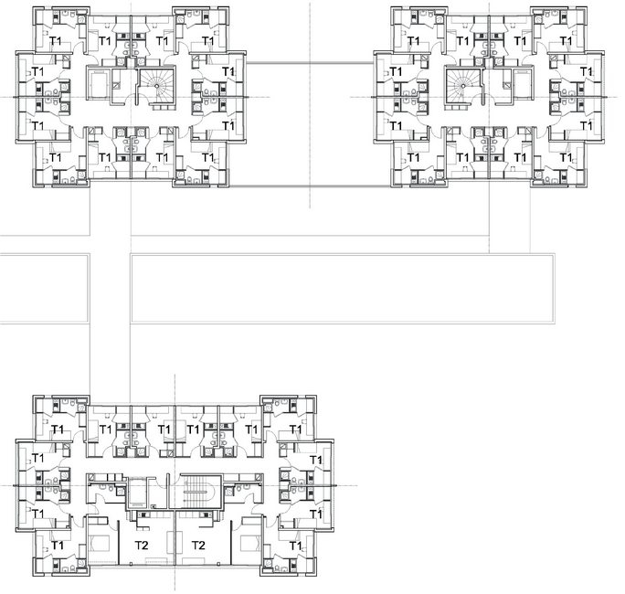
    Le terrain situé dans le campus scientifique de Rangueil  et affecté à l’opération impose une forte densité , en raison de ses dimensions .Ainsi 3 bâtiments de grande hauteur R+6 et R+7 accueillent les 250 logements studios destinés à des étudiants dont 20 logements  T2 réservés à des étudiants  handicapés  lourds et nécessitant des aménagements spécifiques. Les services communs et salles de réunions sont quant à eux regroupés dans un bâtiment en rez-de-chaussée . On trouve par ailleurs un logement de fonction.

    Les bâtiments sont réalisés en panneaux béton laissés bruts .

    Opération certifiée Habitat & Environnement 

    250 logements Campus Rangueil_

    Maître d’ouvrage : SAHLM de l’Université.
    Maîtrise d’oeuvre : Atelier 13 mandataire.
    Surface : 7781m².
    Procédure négociée 2007.
    Achèvement 2008.
    Crédit photos : J.-Ph. Loupiac.

    250 logements Campus Rangueil_Image 1
  • Toulouse - 2006
    Concours

    Le terrain situé dans le campus scientifique de Rangueil  et affecté à l’opération impose une forte densité , en raison de ses dimensions .Ainsi 3 bâtiments de grande hauteur R+6 et R+7 accueillent les 250 logements studios destinés à des étudiants dont 20 logements  T2 réservés à des étudiants  handicapés  lourds et nécessitant des aménagements spécifiques. Les services communs et salles de réunions sont quant à eux regroupés dans un bâtiment en rez-de-chaussée . On trouve par ailleurs un logement de fonction.

    Les bâtiments sont réalisés en panneaux béton laissés bruts .

    Opération certifiée Habitat & Environnement 

    250 logements Campus Rangueil_

    Maître d’ouvrage : SAHLM de l’Université.
    Maîtrise d’oeuvre : Atelier 13 mandataire.
    Surface : 7781m².
    Procédure négociée 2007.
    Achèvement 2008.
    Crédit photos : J.-Ph. Loupiac.

    250 logements Campus Rangueil_Image 2
  • Toulouse - 2006
    Concours

    Le terrain situé dans le campus scientifique de Rangueil  et affecté à l’opération impose une forte densité , en raison de ses dimensions .Ainsi 3 bâtiments de grande hauteur R+6 et R+7 accueillent les 250 logements studios destinés à des étudiants dont 20 logements  T2 réservés à des étudiants  handicapés  lourds et nécessitant des aménagements spécifiques. Les services communs et salles de réunions sont quant à eux regroupés dans un bâtiment en rez-de-chaussée . On trouve par ailleurs un logement de fonction.

    Les bâtiments sont réalisés en panneaux béton laissés bruts .

    Opération certifiée Habitat & Environnement 

    250 logements Campus Rangueil_

    Maître d’ouvrage : SAHLM de l’Université.
    Maîtrise d’oeuvre : Atelier 13 mandataire.
    Surface : 7781m².
    Procédure négociée 2007.
    Achèvement 2008.
    Crédit photos : J.-Ph. Loupiac.

    250 logements Campus Rangueil_Image 3
  • Toulouse - 2006
    Concours

    Le terrain situé dans le campus scientifique de Rangueil  et affecté à l’opération impose une forte densité , en raison de ses dimensions .Ainsi 3 bâtiments de grande hauteur R+6 et R+7 accueillent les 250 logements studios destinés à des étudiants dont 20 logements  T2 réservés à des étudiants  handicapés  lourds et nécessitant des aménagements spécifiques. Les services communs et salles de réunions sont quant à eux regroupés dans un bâtiment en rez-de-chaussée . On trouve par ailleurs un logement de fonction.

    Les bâtiments sont réalisés en panneaux béton laissés bruts .

    Opération certifiée Habitat & Environnement 

    250 logements Campus Rangueil_

    Maître d’ouvrage : SAHLM de l’Université.
    Maîtrise d’oeuvre : Atelier 13 mandataire.
    Surface : 7781m².
    Procédure négociée 2007.
    Achèvement 2008.
    Crédit photos : J.-Ph. Loupiac.

    250 logements Campus Rangueil_Image 4